www.passion-chantiers.org

Archives sur les chantiers et sur les entrepreneurs Belges
Nous sommes le Ven 13 Fév 2026, 00:09

Heures au format UTC + 1 heure




Poster un nouveau sujet Répondre au sujet  [ 8 messages ] 
Auteur Message
MessagePosté: Mar 26 Jan 2016, 22:01 
Hors ligne
Administrateur - Site Admin
Avatar de l’utilisateur

Inscription: Sam 16 Déc 2006, 19:51
Messages: 3560
Localisation: Beauvechain, Belgique
Début 2016, le tunnel Stéphanie passant sous le « goulet Louise » défiait l’actualité de par sa fermeture pour au moins une année suite à des fissures constatées dans celui-ci
L’occasion de ressortir les archives de sa construction

Le tunnel Stéphanie fait partie d’un ensemble de tunnels métro/routier en dessous de la place Stéphanie, du « Goulet Louise » de la place Louise de la rue des quatre bras, et des boulevards de la petite ceinture.

Fichier(s) joint(s):
Stephanie1.jpg
Stephanie1.jpg [ 391.15 Kio | Vu 41393 fois ]


Phase 1

Lors de la première phase inaugurée pour l’exposition 58’ les deux tunnels routiers et la boucle de raccordement permettant au trafic de passer du tunnel Stéphanie en direction du centre au tunnel « petite ceinture » en direction de Rogier ont été réalisé.
L’épopée de cette construction provient de la technique des travaux de janvier/février 1959.

Fichier(s) joint(s):
Stephanie2.jpg
Stephanie2.jpg [ 242.17 Kio | Vu 41393 fois ]


C'est l'entreprise SOCOL viewtopic.php?f=23&t=556 qui a construit l’ouvrage en un temps record.

Le tunnel sous les boulevards de la petite ceinture.

Ce tunnel ne présente guerres de difficultés technique, il a été réalisé en trois étape :
- Un premier tiers coté porte de Hal ainsi que la trémie d’accès. Le trafic est alors entièrement dévié sur ce nouvel ouvrage
- L’autre tiers et la trémie de sortie coté Rogier
- Et enfin la partie central simultanément avec le croisement du tunnel Stéphanie qui passe par-dessous.

Cet ouvrage est en béton armé.

Le tunnel Stéphanie

La partie au-delà du tunnel sous les boulevards de la petite ceinture coté palais de Justice est elle aussi assez simple. Elle a été réalisée à l’abri de palplanches.

Fichier(s) joint(s):
Stephanie3.JPG
Stephanie3.JPG [ 683.12 Kio | Vu 41391 fois ]


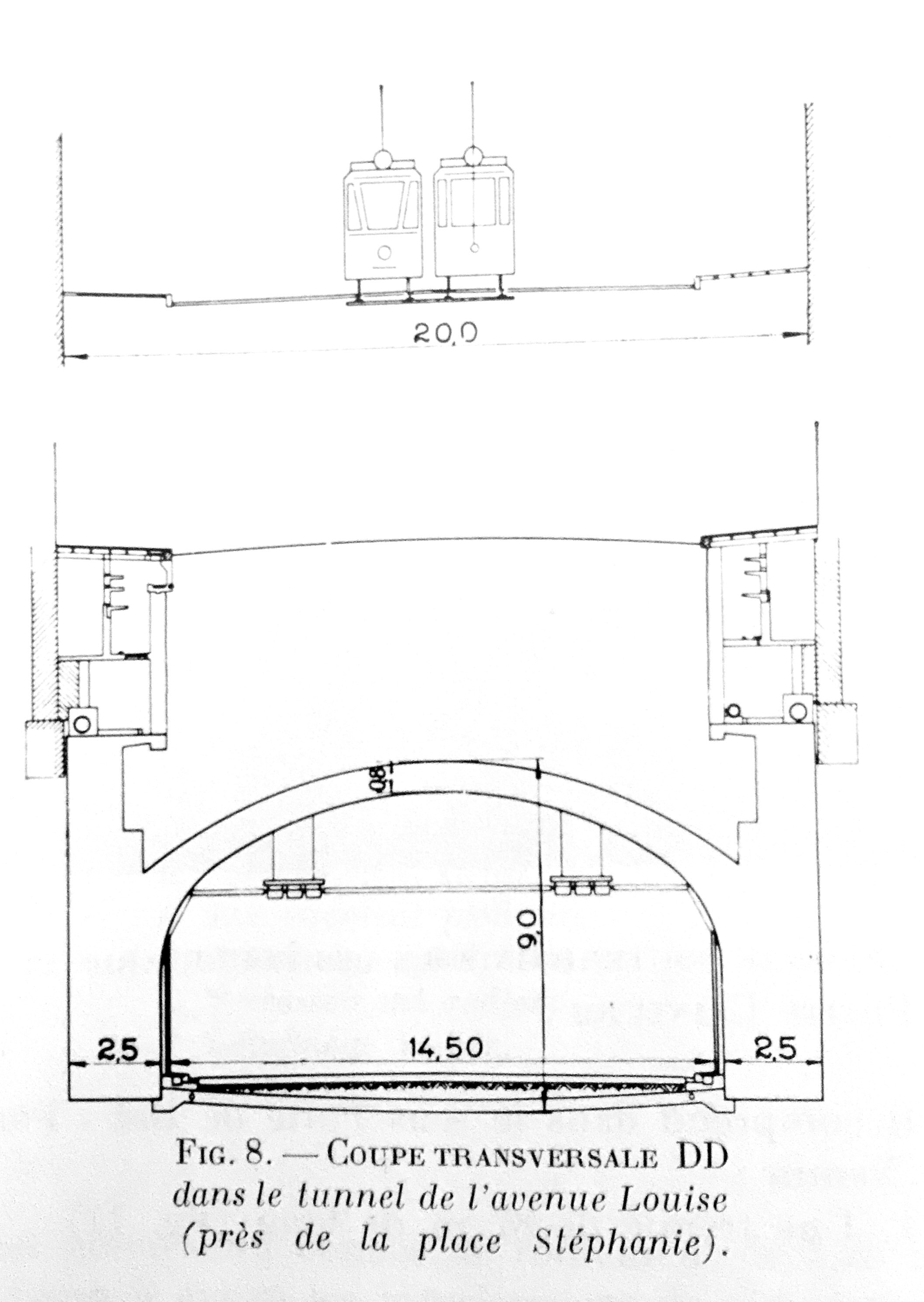
La partie sous le goulet Louise est de loin la plus compliquée.

Fichier(s) joint(s):
Stephanie 7.JPG
Stephanie 7.JPG [ 592.28 Kio | Vu 41390 fois ]


En effet, la réalisation de cette section a débuté par le terrassement de ce qui devait être deux galeries directement sous les trottoirs, mais qui suite à un accident lié au gaz, est devenu des fouilles à ciel ouvert recouverte d’un plancher en journée.
À partir de ces fouilles le rempiétement des façades a été exécuté ainsi que les murs latéraux du futur tunnel (par section de 3 m de long). La méthode d’exécution était fort similaire à celle des fouilles blindée, mais les étançons maintenant en acier, et les pré dalles maintenant en béton étaient entièrement en bois, ce qui exigeait un bétonnage par couche de 30 cm afin de permettre le retrait des boisages. Le béton était produit dans deux centrales à béton installées l’une sur la place Stéphanie, l’autre place Louise.

A noter que le béton n'était pas armé :shock:

Fichier(s) joint(s):
Stephanie4.JPG
Stephanie4.JPG [ 1019.96 Kio | Vu 41390 fois ]


Ensuite une galerie est creusée dans ce qui sera la faîte du tunnel au départ de quatre puits d’accès (place Louise, Rue J Stas, Rue Jourdan, Place Stéphanie). Et enfin des galeries transversales afin de permettre le bétonnage de la voûte par tranche de 2 ou 3 m de long.

Fichier(s) joint(s):
Stephanie5.JPG
Stephanie5.JPG [ 939.83 Kio | Vu 41390 fois ]


Les voûtes sous la place Stéphanie et sous l’embranchement des tunnels sous la place Louise a été réalisé à l’abri d’un platelage reposant sur des faux puits.

Fichier(s) joint(s):
Stephanie8.JPG
Stephanie8.JPG [ 1.01 Mio | Vu 41390 fois ]


Fichier(s) joint(s):
Stephanie6.JPG
Stephanie6.JPG [ 1000.38 Kio | Vu 41390 fois ]


La mise en place des équipements pouvait commencer

Fichier(s) joint(s):
Stephanie9.JPG
Stephanie9.JPG [ 838.97 Kio | Vu 41390 fois ]

_________________
Un chien, des chats, deux canaris, une chèvre….


Haut
 Profil  
 
MessagePosté: Mar 26 Jan 2016, 23:32 
Hors ligne
Administrateur - Site Admin
Avatar de l’utilisateur

Inscription: Sam 16 Déc 2006, 19:51
Messages: 3560
Localisation: Beauvechain, Belgique
Phase 2 ?

Concerne la réalisation de la liaison du tunnel sous la petite ceinture direction porte de Hal vers le tunnel Stéphanie direction Bois de la Cambre. Construit sous les immeubles de l’extension du palais de justice, cela date probablement de la même époque.
Je n’ai aucune information la dessus

_________________
Un chien, des chats, deux canaris, une chèvre….


Haut
 Profil  
 
MessagePosté: Mar 26 Jan 2016, 23:33 
Hors ligne
Administrateur - Site Admin
Avatar de l’utilisateur

Inscription: Sam 16 Déc 2006, 19:51
Messages: 3560
Localisation: Beauvechain, Belgique
Phase 3


Concerne la réalisation de la station de métro en dessous du complexe routier. J’ai un peu de documentation sur le sujet, je vais essayer de documenter cette phase

_________________
Un chien, des chats, deux canaris, une chèvre….


Haut
 Profil  
 
MessagePosté: Ven 29 Jan 2016, 10:40 
Hors ligne

Inscription: Lun 27 Fév 2012, 00:43
Messages: 603
Localisation: Gilly
:top très intéressant Romu , merci .


Haut
 Profil  
 
MessagePosté: Ven 29 Jan 2016, 20:37 
Hors ligne
Administrateur - Site Admin
Avatar de l’utilisateur

Inscription: Sam 16 Déc 2006, 19:51
Messages: 3560
Localisation: Beauvechain, Belgique
Merci si quelqu'un a plus d'info :)

_________________
Un chien, des chats, deux canaris, une chèvre….


Haut
 Profil  
 
MessagePosté: Ven 29 Jan 2016, 22:32 
Hors ligne
Avatar de l’utilisateur

Inscription: Lun 14 Jan 2008, 09:16
Messages: 3
Superbe reportage. Si mes souvenirs sont exacts, la revue Excavator a également traité ce sujet


Haut
 Profil  
 
MessagePosté: Sam 30 Jan 2016, 20:49 
Hors ligne
Administrateur - Site Admin
Avatar de l’utilisateur

Inscription: Sam 16 Déc 2006, 19:51
Messages: 3560
Localisation: Beauvechain, Belgique
Merci

En effet courant 1980 dans le cadre du Metro. Un article à ce sujet va arriver :)

_________________
Un chien, des chats, deux canaris, une chèvre….


Haut
 Profil  
 
MessagePosté: Dim 07 Fév 2016, 17:09 
Hors ligne
Avatar de l’utilisateur

Inscription: Mer 12 Sep 2007, 07:45
Messages: 906
Localisation: Quevaucamps, hainaut
intéressant, Merci.

_________________
https://www.facebook.com/Baseclois


Haut
 Profil  
 
Afficher les messages postés depuis:  Trier par  
Poster un nouveau sujet Répondre au sujet  [ 8 messages ] 

Heures au format UTC + 1 heure


Qui est en ligne

Utilisateurs parcourant ce forum: Aucun utilisateur enregistré et 11 invités


Vous ne pouvez pas poster de nouveaux sujets
Vous ne pouvez pas répondre aux sujets
Vous ne pouvez pas éditer vos messages
Vous ne pouvez pas supprimer vos messages
Vous ne pouvez pas joindre des fichiers

Rechercher:
Aller à:  
cron
Développé par phpBB® Forum Software © phpBB Group
Traduction par phpBB-fr.com